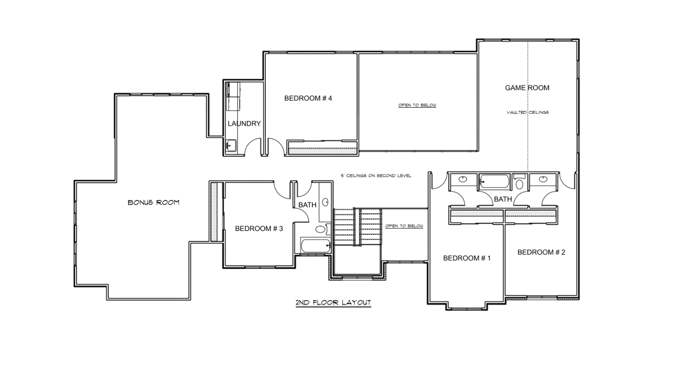
The Chuckwalla
Main floor:2423 sq ft
Second floor: 2318 sq ft
Total: 4741 sq ft
5 BED, 4 BATH
Main floor:2423 sq ft
Second floor: 2318 sq ft
Total: 4741 sq ft
5 BED, 4 BATH