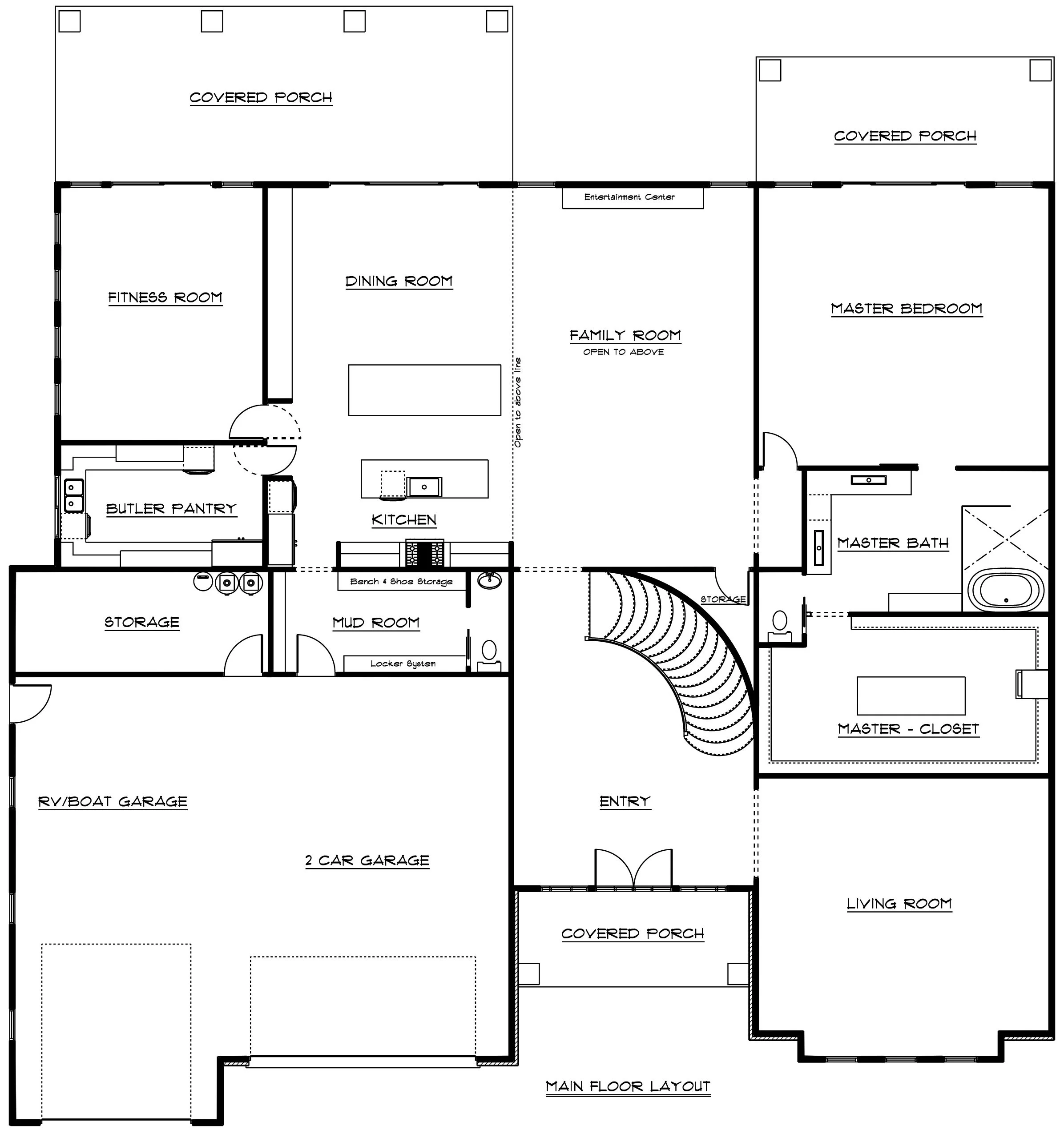
The Gooseberry
Main floor: 3,978 sq ft
Second floor: 3,871 sq ft
Total: 7,849 sq ft
5 BED, 3.5 BATH
Main floor: 3,978 sq ft
Second floor: 3,871 sq ft
Total: 7,849 sq ft
5 BED, 3.5 BATH