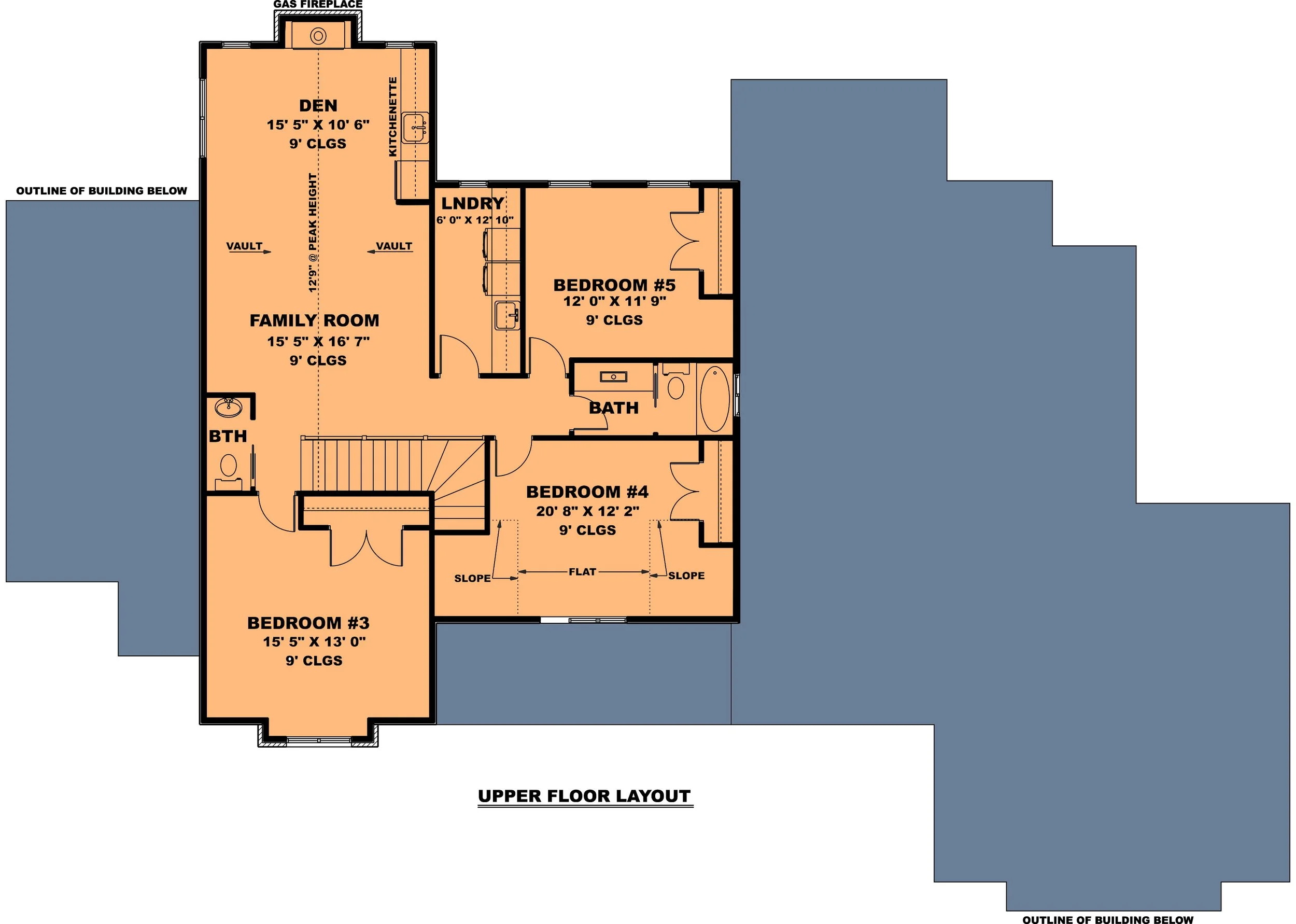
The Teara
Main Floor: 2,713 Sq Ft
Second Floor: 1,406 Sq Ft
Total: 4,119 Sq Ft
5 BED, 3 BATH, 2 HALF BATH
Main Floor: 2,713 Sq Ft
Second Floor: 1,406 Sq Ft
Total: 4,119 Sq Ft
5 BED, 3 BATH, 2 HALF BATH